八本松飯田5丁目 B
印刷用画面
築後未入居
借入期間
年借入金利
%月々のお支払い例
円※月々のお支払い例は金融機関や商品によって借入金額の条件は異なります。詳しくは店舗までお問い合わせください。
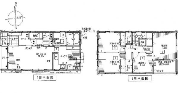
図面と現況が異なる場合は現況を優先します。
POINT
南向きで陽当たり良好!オール電化の物件です。

中村 慶成
物件概要
土地面積 |
242.16m2(73.25坪) |
建物面積 |
99.16m2(29.99坪) |
建物構造 |
地上2階建て |
|---|---|---|---|---|---|
土地権利 |
所有権 |
築年月 |
2024年10月 |
建物現況 |
完成済 |
用途地域 |
- |
建ぺい率 |
% |
容積率 |
% |
現況 |
地目 |
- |
都市計画 |
市街化調整 |
|
建築確認番号 |
JE24BA1-34-0418 |
引渡時期 |
相談 |
駐車場 |
有 カースペース |
セットバック |
- |
接道状況 |
北西側 公道 |
私道面積 |
私道負担無 |
取引態様 |
媒介 |
||||
設備 |
個別LPG / 公営水道 オール電化 |
||||
制限事項 |
|||||
備考 |
■18.13帖のLDKは南向きで陽当たり良好! ■キッチンスペースに余裕があるのでご家族一緒に料理を楽しむことができます。 ■全居室収納に加え、キッチンや洗面室、廊下などにも収納があり、使いやすい間取りです。 ■コンビニまで徒歩7分で便利です。 ■小学校まで徒歩4分でお子様のいらっしゃるご家族にもおすすめです。 - |
||||
物件周辺環境
コンビニ
ファミリーマート 八本松飯田店
520m(徒歩7分)
コンビニまで徒歩7分
小学校
東広島市立川上小学校
301m(徒歩4分)
川上小学校まで徒歩4分
この物件に関するお問い合わせ
「八本松飯田5丁目」とお伝えいただくと、スムーズにご案内できます。

担当:中村 慶成
















